振動篩

振動篩:廠家直銷、價格便宜

直線振動篩、超聲波振動篩:型號參數全

聯系電話
您的位置:首頁>產品展示>氣流篩
氣流篩

氣流篩

優勢:氣流篩利用粉料的流動性好、質量小而輕、易飄浮等特點,將粉料充分擴散到氣流中,粉料以單個微粒依次隨氣流透過篩網,達到對粉料的篩分目的,80-530目的粉狀物料均可篩分,篩網垂直安裝,不負重,使用壽命更長,效率可達到95%以上,產量是普通振動篩的5-10倍或更高。

目數:80-500目

產量:1~10噸/時

7*24小時免費咨詢熱線
0373-268 2333

在線咨詢

篩分麥麩

氣流篩產品概述

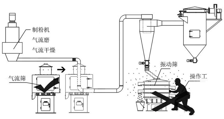
大漢公司是微細粉篩分機械專業性生產廠家。隨著市場經濟以及科技的發展,產品質量對各種粉狀物料的細度、精度要求越來越高。微細粉物料易粘附、粒徑小、質輕、易懸浮等特點;國內現有旋振篩,直線篩利用其重力勢,激振力,彈力作業很難篩分,易引起粉塵飛揚,更難達到技術要求。大漢公司針對這一情況,工程技術人員經過多年來研究試制,開發出專門用于微細粉篩分的產品——氣流篩

氣流篩介紹

該機適合80-530目有網各種粉狀物料篩選分級,其篩分效率高、產量大、自動進料排料、連續作業、無污染,使以往用各種振動篩難以進行高細度精密篩分作業成為易事。經過對120-180目輕鈣、300目重鈣、400目活性鈣、300目山楂粉、320-500目鋅粉、500目氧化鐵黑、氧化鐵紅、120-160目中藥粉、180-270目石英粉等物料的篩分使用,測得每平方米篩網面積每小時產量均在一噸左右,同時測得篩分效率在95%以上,空氣含塵量低于10mg/m3。

工作原理

氣流篩擯棄重力勢能作業原理,采用空氣作載體,動能作功的作業原理。通過負壓氣流將物料與空氣混合后,進入篩機風輪中間,通過風輪葉片施加足夠的離心力,向桶型篩網噴射過網,經過蝸殼收集。超徑物料不能過網,由自動排渣口排出,從而達到快速篩分的目的。

氣流篩動畫原理

氣流篩產品特點

◇ 篩分效率高:可達到95%以上;

◇ 臺時產量是振動篩的5-10倍或更高;

◇ 適應細度范圍廣:80-530目的粉狀物料均可高篩分;

◇ 產品細度,無混級現象;

氣流篩特點

◇ 篩網垂直安裝,不負重,使用壽命長;

◇ 篩分程序在負壓半循環狀態下進行,無粉塵污染;

◇ 可與各種磨機,風路并網配套使用;

◇ 噪音小、耗電低、連續作業、減少維修。

氣流篩與振動篩區別

氣流篩技術參數

項目型號 LQS-600 LQS-1000 LQS-1600
氣流量 240-1100 300-2500 460-4900
篩網規格 80-600目任意更換
入料顆粒 40目以細
篩機功率 3 5.5 15
主軸轉速 450-145
篩機外徑 φ600 φ1000 φ1600
全高 1150 1730 2300

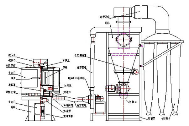
產品結構

氣流篩與旋風卸料器及布袋除塵裝置組成閉路篩分除塵系統。主機是立式氣流篩粉機,上端篩體的密閉外殼內裝有立式圓周筒形篩網;篩網內側有裝配有圓周形風輪,主軸通過裝在底座內部的電動機驅動高速旋轉后透網篩分。氣流篩外殼的正上方裝有進料斗及粗篩網,風道下部有特別設計的排渣口,電動機與主軸為皮帶連接;風輪與進料斗下口形成隔層間隙。旋風分離卸料器及布袋除塵裝置有正壓引風機通過塑料波紋軟管連接。

氣流篩結構圖

氣流篩應用行業

石墨粉、樹脂粉、中藥粉、涂料、粉煤灰、滑石粉、工業藥品、化妝品、滅火劑、塑料粉、陶土、研磨料、鋁粉、玻璃粉、耐火材料、淀粉、奶粉、冶金粉末、電磁材料、銅粉、炭黑、活性炭、輕質碳酸鈣、鐵礦砂等。

氣流篩應用行業

Copyright © 2007-2013 新鄉市大漢振動篩廠家 | All Rights Reserved 備案序號:豫ICP備09002479號-2
企業法人營業執照(注冊號):410721100003866振動篩廠家微信